
이미 많은 잡지에서 소개된 팸벌리하우스가 이번에는 브리크매거진에 소개가 되었읍니다.
브리크 매거진?
<브리크brique>는 도시인의 삶의 질을 높이는 창의적인 주거 공간과 다양한 라이프스타일을 공간에 녹여낸 이야기를 전하는 온·오프라인 미디어입니다. 기획한 이, 만든 이, 사는 이들을 만나 영감 가득한 공간이 탄생하기까지의 과정을 흥미진진하게 풀어냅니다.
이번 <브리크brique> vol.3 (2020년 봄호)은 밀레니얼들의 변화하는 삶의 방식을 적용한 다양한 주거 공간을 선보이고, 이들을 겨냥해 집 근처 동네에 새롭게 등장한 신개념 공간과 서비스를 소개합니다.

팸벌리 하우스 _ 보편적인건축사사무소


내용 자체는 그간 여러 잡지에 소개된 내용과 비슷합니다. 아래는 해당 잡지에 소개된 약간의 사진과 약간의 내용입니다. 자세한 내용과 전체 내용은 본 글 최하단의 원문 [브리크매거진]링크를 이용해 주시면 감사하겠읍니다.

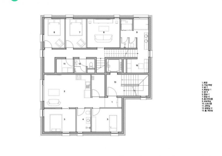
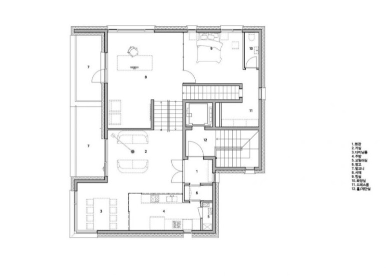
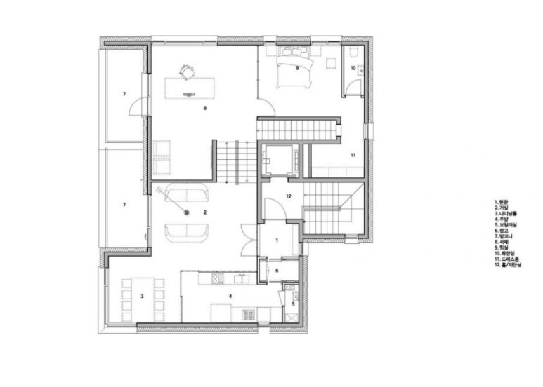
군산시에 위치한 이 점포주택은 프로젝트 시작 전부터 ‘팸벌리 하우스 Pemberley House’라고 불렸다. 프로젝트를 위한 첫 만남에서 건축주는 소설 ‘오만과 편견’의 주인공 팸벌리 가문의 다아시가 사는 저택을 떠올린 것이 시작이다. 아침 햇살을 받으며 깨어나 주택의 계단을 드레스를 끌며 내려오는 상상은 신축을 원하는 건축주 아내에게는 이른바 로망이었다. 반면에 지역의 공과대학 교수인 남편은 직업적 성향이 기밀과 단열에 중점을 둔 패시브 하우스를 원했다.

기능과 정서
팸벌리 하우스는 집으로서 단열과 기밀 성능의 확보를 중시했고, 실내 공기질의 쾌적함을 유지하면서 동시에 주거 공간에서의 질적 만족도를 높이는 것에서 시작하였다. 한편 내부 공간은 익숙함과 보편성을 추구하기보다는 거주자인 부부의 공간에 대한 기대와 인식의 확장을 통한 심미적 구성으로 귀결되었다.





도면과 현장의 시너지
시공자는 건축가가 원하는 재료 구현과 디테일 의도를 파악하고, 시공 경험의 노하우를 녹여내어 도면과 현장 사이에 긍정적 시너지를 창출할 수 있었다. 공용 계단실의 석재와 난간, 문틀과 실내 계단의 난간 손잡이 등은 그러한 결과로 도출된 요소가 되었다. 현장 곳곳에 카메라를 설치하여 실시간으로 공유하고, 타임랩스를 구성하여 서울과 군산의 물리적 거리 한계를 극복하려는 시도 또한 원활한 현장 관리와 진행에 큰 도움이 되었다.

펨벌리 하우스 Pemberley House - 브리크매거진 - BRIQUE MAGAZINE
에디터. 장경림 글 & 자료. 보편적인건축사사무소 Office For Ordinary Architecture 군산시에 위치한 이 상가주택은 프로젝트 시작 전부터 ‘펨벌리 하우스Pemberley House’라고 불렸다. 프로젝트를 위
magazine.brique.co
